30 tons traverskran

Produktbeskrivelse
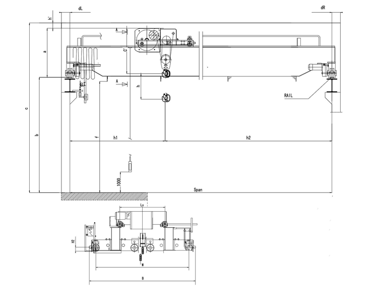
Kenancranes traverskraner med dobbeltdrager tilbyder enestående belastningskapacitet og minimal dødvægt. Deres præcise og stabile geometri giver rejseegenskaber, der minimerer slid på endevognene og landingsbanen. Derudover kan lastkrogen hæves mellem de to krandragere, hvilket muliggør maksimale løftehøjder. Dobbeltbjælkebrokran er hovedsageligt sammensat af bro, løberedskaber af kran, trolley og elektrisk udstyr osv. Dobbeltdrager traverskraner bruges normalt i åbne lagre eller jernbaner og andre steder til at udføre almindelige læsse- og losse- og materialehåndteringsopgaver. Det er en kraftig brokran, der er flittigt brugt.
Teknisk blad

|
Parameter (kan tilpasses)
|
|
|
Løftekapacitet (ton)
|
1-30
|
|
Arbejderklasse
|
A5-A8
|
|
Spændvidde (m)
|
7.5-31.5
|
|
Arbejdstemperatur
|
-25~40 grader
|
|
Løftehastighed (m/min)
|
8/0.8
|
|
Løftehøjde (m)
|
6,9,12,18,24,30
|
|
Rejsehastighed (m/min)
|
20/30
|
Produktdetaljer


Applikationsscenarier

Om Kenancranes



Populære tags: 30 tons traverskran, Kina 30 tons traverskran producenter, leverandører, fabrik
Et par af
60 tons traverskranNæste
25 tons traverskranDu kan også lide
Send forespørgsel












