80 tons portalkran
Oversigt
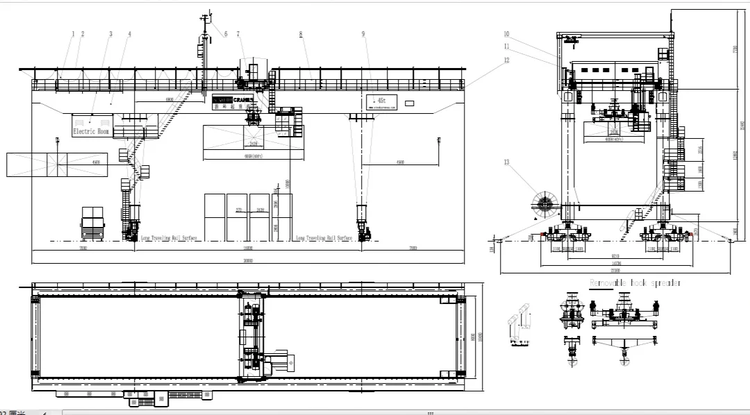
Skinnemonteret jordskinne portalkran (RMG) er en slags skinnemonteret kran, der bruges til at losse, stable og læsse 20 fod, 40 fod, 45 fod ISO standard containere. Dens levering af strøm tilbydes af kabelrulle. Kranen indeholder tre mekanismer: hejsning, trolleykørsel og portalkørsel. Vognen, der løber langs sporet monteret på portalbjælken, er i stand til at tjene mellem benene. Kranen er i stand til at lave lige bevægelser langs skinner.
Containerportalen vedtager en portalstruktur, bestående af to søjler og bjælker, som kan give stabil støtte og bæreevne. Containerportalkranen er udstyret med en hejsemekanisme og en køremekanisme. Hejsemekanismen og ståltovet bruges til at løfte og sænke containeren, og den har mulighed for at bevæge sig vandret. De bruges i vid udstrækning i havne, logistiklager, fragtstationer og andre steder til effektivt at læsse og losse containere og forbedre arbejdseffektiviteten og sikkerheden. Betjeningen af containerportalkranen kan styres manuelt eller automatisk gennem kontrolsystemet. De er vigtigt udstyr inden for containerlogistik, der hjælper med at fremskynde varestrømmen og forbedre logistikeffektiviteten.
Specifikation

|
Parameter (tilpasset)
|
|
|
Løftekapacitet (ton)
|
Op til 300t
|
|
Arbejderklasse
|
A3-A7
|
|
Spændvidde (m)
|
Op til 35m
|
|
Arbejdstemperatur
|
-25~40 grader
|
|
Løftehøjde (m)
|
Tilpasset
|
|
Løftemekanisme
|
Spilvogn eller hejsevogn
|
|
Strømforsyning
|
AC-3Fase-220//230380/400/415/440V-50/60Hz
|
|
Kontrol måde
|
Styrehåndtag (trykknap), trådløs fjernbetjening, kabinekontrol
|
Detaljerede billeder

Fjernlys
* Q345E stålmateriale til stålkonstruktion, Kan modstå slagprøven på minus 40 grader.
* Ultralydsdetektion.
* Stærkt kassedesign, mindre forvrængning automatisk svejsning.
* Helstrålebehandlingsklasse: Sa2,5.
* Aflastning af svejserester.
Motor
* CHANG HANG Mærke.
* Høj beskyttelsesklasse IP55.
* Kontinuerlig drift varighed faktor.
* Indbygget termostat overophedningsbeskyttelse, Optimering af luftkølet.
* Med manuel udløsning med varmelegeme til lav temperatur start.


Bremse(2 sæt bremser til løft)
* ZPMC mærke Top ét mærke i Kina.
* Dobbelt uafhængige bremser til hver løftemekanisme, 200 % bremsemoment for sikkerhed.
Drun & Wire reb
* Stor ståltovskrumning.
* 1 gange sikkerhedsfaktor.
* Høj placeringsnøjagtighed, lille afvigelse.
* Ståltov med høj styrke.
* Valset tromle, høj styrke.
* Q345B stålmateriale, Brug sømløs stålpæl, CNC-slidsning 6x36 struktur, stålkerne, top en Kina-wire.


Kabine
* Førerhuset er bevægeligt.
* Industriel AC Temperaturen i kabinen ved en omgivende temperatur på -40 grad må ikke være lavere end +16 grad.
Udstyret med automatiske udvendige viskere med skiver og en roterende styrestol med justerbar ryg og sæde.
Hjul
* 35CrMnSiA lavlegeret ultra-højstyrke stålmateriale.
* Stålstøbeteknologiproces EN-9 smedet stål, egnet til varmebehandlet op til hårdhed 280 til 300 BHN.

Applikationsscenarier

Pakning

Firmaprofil


Populære tags: 80 tons portalkran, Kina 80 tons portalkran producenter, leverandører, fabrik
Et par af
Fast portalkranNæste
75 tons portalkranDu kan også lide
Send forespørgsel












