20 tons portalkran

I. Oversigt
L-formet enkelt-drager portalkran er en slags løfteudstyr. Den understøtter løftemekanismen og krogen med en bjælke på tværs af arbejdsområdet og er formet som et "L". Denne struktur gør det muligt for kranen at have et større arbejdsområde og højere arbejdshøjde. Den har effektive materialehåndteringsegenskaber, der øger arbejdseffektiviteten og produktiviteten. Dens sikkerhedsydelse er garanteret og udstyret med forskellige sikkerhedsanordninger såsom overbelastningsbeskyttelse, nødstopknap og endestop. L-formede enkeltbjælke portalkraner er meget udbredt inden for fremstilling, lager og logistik, byggepladser og andre områder, hvilket giver effektive og sikre løfteløsninger til alle samfundslag.
II. Produktfordele
1. Unik struktur: L-formet enkeltbjælke portalkran vedtager en speciel L-formet struktur, hvor bjælken og søjlen danner en vinkel på 90 grader. Denne struktur gør det muligt for kranen at dække et bredere arbejdsområde og tilpasse sig stedets krav af forskellig størrelse og layout.
2. Fleksibilitet og tilpasningsevne: L-formet enkelt-drager portalkran kan tilpasses efter kundernes specifikke behov, herunder justeringer af løftekapacitet, spændvidde, løftehøjde og andre parametre. Dette gør det muligt for kranen at tilpasse sig forskellige arbejdsscenarier og krav til materialehåndtering.
3. Effektive materialehåndteringsegenskaber: L-formet enkelt-drager portalkran har effektive materialehåndteringsevner, som kan forbedre arbejdseffektiviteten og produktiviteten. Den er velegnet til løft, håndtering og positionering af forskellige materialer.
4. Sikkerhedsydelse: Den L-formede portalkran med enkelt drager er udstyret med en række sikkerhedsanordninger, såsom overbelastningsbeskyttelse, nødstopknapper og endestop, for at sikre driftsikkerheden og personalesikkerheden.
III. Teknisk blad

|
Kapacitet/t
|
3
|
5
|
10
|
16
|
20
|
||
|
Spændvidde/m
|
12/16/24/30
|
||||||
|
Operationel metode
|
nedhængt linje med trykknap/kabine/fjernbetjening
|
||||||
|
Fart |
Løft m/min
|
8,8/0.8
|
8,8/0.8
|
7,7/0.7
|
3.5
|
3.5
|
|
|
På kryds og tværs
|
20
|
20
|
20
|
20
|
20
|
||
|
Lang rejse
|
Jord
|
20
|
20
|
20
|
20
|
20
|
|
|
Kabel
|
20,30,45
|
20,30,40
|
20,30
|
20,30
|
20,30
|
||
|
Elektrisk hejs
|
CD1/MD1
|
CD1/MD1
|
CD1/MD1
|
CD1
|
HC
|
||
|
Løftehøjde/m
|
6/9/12/18/24/30
|
||||||
|
Arbejdspligt
|
A3
|
||||||
|
Strømforsyning
|
380V 50Hz 3PH AC
|
||||||
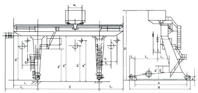
IV. Krandele detaljer

V. Ansøgning


Om Kenancranes


Populære tags: 20 tons portalkran, Kina 20 tons portalkran producenter, leverandører, fabrik
Et par af
25 tons portalkranNæste
6 tons portalkranDu kan også lide
Send forespørgsel












